Brouwersgracht 95-G – Amsterdam
Oppervlakte:50 m2 - Aantal slaapkamers: 2
Omschrijving
€ 485.000,- v.o.n. – Op één van de bekendste kruispunten in de grachtengordel, de kruising Prinsengracht-Brouwersgracht, ligt aan de Brouwersgracht 95 G de opvallend blauwe woonboot *JANTJE* te koop.
De locatie kunnen we kort over zijn. De Brouwersgracht is één van de mooiste grachten binnen ons UNESCO erfgoed. De Jordaan, de Haarlemmerstraat- en dijk, de Westergasfabriek maar ook het Centraal Station en het pontje naar Noord liggen allemaal binnen handbereik.
De keur aan cafeetjes en restaurants is enorm! Dit is het bruisende hart van Amsterdam. Een unieke kans om in dit gebied te wonen!
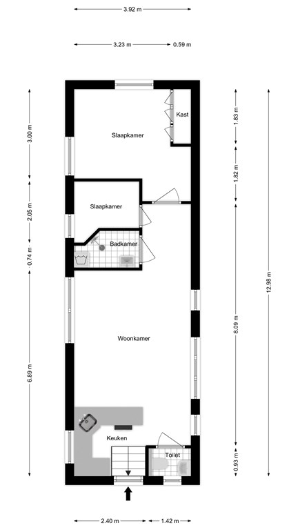
De woonboot *JANTJE” is een Amsterdamse dekschuit van ± 17.60 x 4.25 meter en is een uitstekend bewoonbaar en een efficiënt ingedeeld “drijvend appartement” van ± 50m2 woonoppervlakte.
Via de entree op het voordek kom je via een trapje in de ruime living met open keuken waarin een U-vormig keukenblok met eetbar is opgesteld.
Vele raampartijen geven prachtig zicht op het water.
Naast een separaat toilet is via de gang de badkamer met douche, wastafel en opstelling wasmachine en droger bereikbaar. Aan deze zijde vinden we ook een tweetal slaapkamers in grote variërend. Een vaste kastenwand in de “master-bedroom” biedt voldoende opbergmogelijkheden maar uiteraard kan de kleine slaapkamer ook omgetoverd worden naar een ruime inloopkast.
Door de gehele woning ligt een fraai houten vloer.
De woonboot is in mei 2023 voor onderhoud naar een werf geweest en een volgende werfgang hoeft pas weer voor mei 2030.
En mocht u toch liever meer woonoppervlakte wensen dan is er uiteraard de mogelijkheid om de huidige woonboot te vervangen voor een andere woonboot met stalen casco.
Voordat u zich in de vervangingsmogelijkheden verdiept….. het afmeren van een nieuwe woonboot met stalen casco heeft bepaalde spelregels, maar het is uiteraard mogelijk! U dient zich o.a. aan de regelgeving voor afmetingen, zoals opgenomen in het ter plaatse geldende beleid te houden waarbij een lengte van ± 19 meter en breedte van 5 meter haalbaar lijkt te zijn. Toets daarom zelf bij de gemeente wat de mogelijkheden zijn en wat u voor ogen hebt.
Bijzonderheden:
Naam: JANTJE
Casco: Staal
Afmetingen: ± 17.60 x 4.25 m (casco)
Liggeld: € 971,50 per jaar (2025)
Nutsvoorzieningen: Elektra, gas, water, riool
Disclaimer inzake aanbod
De informatie op deze pagina geeft een globale omschrijving van het aangeboden object. Aan de inhoud kunnen geen rechten worden ontleend. Vermelding van afmetingen en oppervlakten is slechts als aanduiding bedoeld en niet als gegarandeerde eigenschap. De NEN meetinstructie voor gebouwen is niet toegepast.
Alle zich in deze aanbieding bevindende informatie is door ons met grote zorgvuldigheid samengesteld, echter met betrekking tot deze informatie aanvaarden wij geen enkele aansprakelijkheid, noch kan aan vermelde informatie enig recht worden ontleend.
Een woonboot is een roerend goed waarbij de bedenktijd van 3 dagen niet van toepassing is en een mondelinge overeenkomst bindend is.
Per 1 januari 2022 is de wet opkoopbescherming van kracht hetgeen betekent dat gemeenten een zelfbewoningsplicht kunnen opleggen bij aankoop. Voor gedetailleerde informatie hierover verwijzen wij u naar de betreffende gemeente.
Neem contact op
- Email:
- info@woonboot.nl
- Kantoor:
- 020-4680940































