P. Hans Frankfurthersingel 19 – Amsterdam
Oppervlakte:183 m2 - Aantal slaapkamers: 3
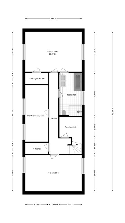
Omschrijving
€ 869.000,- v.o.n. – Riante woonark met prachtige ligplaats aan de Ringvaart van de Haarlemmermeer in het groene stadsdeel Amsterdam Nieuw-West.
De woonark beschikt over een fraaie ligplaats met een wijds uitzicht over het water en op de molen van Sloten. Een heerlijk lichte woning met een netto woonoppervlak van ca. 183 m²!! De ark heeft een betonnen casco en werd in 2001 opgeleverd. De afmetingen zijn ca. 17.00 x 6.00 m met twee volledige verdiepingen. De buitenwanden zijn bekleed met onderhoudsvriendelijk Werzalit.
De ramen en kozijnen zijn van kunststof en voorzien van isolatieglas. De ark is goed geïsoleerd en wordt verwarmd d.m.v. een nieuwe gasgestookte CV-ketel (2026). Op het dak liggen -14- zonnepanelen van 330 Wp (2021) en er is een airco geplaatst die kan koelen en verwarmen.
Op de verdieping is een enorme woonkamer met open keuken v.v. BOSCH solitaire fornuis met oven en wasemkap, vaatwasser en koel-vriescombi. De hele verdieping is voorzien van hoogglans plavuizen. De woonkamer beschikt aan de waterzijde en aan de tuinzijde over een schuifpui. Entree in de ruime hal waar ook een gastentoilet en de trap naar beneden is.
Beneden is een lange gang, een technische ruimte met opstelling van wasmachine en droger, een riante, geheel betegelde badkamer met vloerverwarming waarin een ligbad, een douchecabine, een dubbel wastafelmeubel, en een WC. Tevens de master bedroom met inloopkast, een berging, een tweede slaapkamer die nu in gebruik is als kantoor en een derde slaapkamer.
Tussen de wal en de ark is een grote hardhouten vlonder aanwezig. De omheinde plaats is ca. 17.00 x 5.00 m, er staat een garage van ca. 6.00 x 4.00 m met een elektrische kanteldeur op een betonplaat. Daarnaast is er een fietsenberging van ca. 3.00 x 2.00 m. Aan de garage zit een veranda met afdak. Aan de zonzijde is zonwering (uitvalschermen) aanwezig. Buiten de garage is er één P-vergunning voor op straat mogelijk. Verder is er camerabewaking aanwezig met een harde schijf die de beelden een hele week bewaart.
De ligging van de woonark is zeer centraal en goed bereikbaar zowel met de auto als met het openbaar vervoer.
Het geheel verkeert in uitstekende staat van onderhoud.
Nieuwsgierig geworden? Wij laten u deze woonark graag zien, bel ons voor een afspraak!
Bijzonderheden:
Naam: ONGENOEMD
Casco: Beton
Opbouw: Werzalit
Energielabel: A
Afmeting: ± 17 x 6 meter
Nutsvoorzieningen: water, gas, elektra, riool, telefoon en kabel-tv
Liggeld: ± € 1285 per jaar
Bouwer: EMK Bouw te Lelystad, 2001
Disclaimer inzake aanbod
De informatie op deze pagina geeft een globale omschrijving van het aangeboden object. Aan de inhoud kunnen geen rechten worden ontleend. Vermelding van afmetingen en oppervlakten is slechts als aanduiding bedoeld en niet als gegarandeerde eigenschap. De NEN meetinstructie voor gebouwen is niet toegepast.
Alle zich in deze aanbieding bevindende informatie is door ons met grote zorgvuldigheid samengesteld, echter met betrekking tot deze informatie aanvaarden wij geen enkele aansprakelijkheid, noch kan aan vermelde informatie enig recht worden ontleend.
Een woonboot is een roerend goed waarbij de bedenktijd van 3 dagen niet van toepassing is en een mondelinge overeenkomst bindend is.
Per 1 januari 2022 is de wet opkoopbescherming van kracht hetgeen betekent dat gemeenten een zelfbewoningsplicht kunnen opleggen bij aankoop. Voor gedetailleerde informatie hierover verwijzen wij u naar de betreffende gemeente.
Neem contact op
- Email:
- info@woonboot.nl
- Kantoor:
- 020-4680940



































































