Westerdok 21 – Amsterdam
Oppervlakte:157 m2 - Aantal slaapkamers: 2
Omschrijving
€ 1.490.000,- v.o.n. – In een oase van rust, op loopafstand van Amsterdam Centraal, met de dynamiek van de stad om de hoek, ligt in het zeer geliefde Westerdok, een onder architectuur verbouwde, goed onderhouden, schitterende watervilla “MI GUDU” (‘Mijn liefje’).
Een prachtige watervilla van maar liefst 157 m2 woonoppervlakte inclusief terras. Instapklaar!
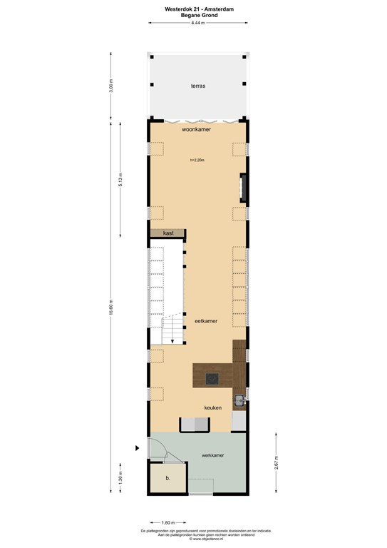
INDELING:
Entree: grote raampartijen en veel natuurlijk licht.
Ruime sfeervolle woonkamer met gashaard.
Fraaie design-keuken (‘Van Boven’) met alle denkbare luxe, zoals een quooker combi/cube (met bruiswater), oven inclusief stoomoven, speciale wokpan-uitsparing op kookplaat en extra brede koel/vriescombi (90cm breed) met ijsklontjesmaker.
Eetkamergedeelte heeft plaats voor een lange eettafel.
Werkkamer aan de kopse kant waar een extra slaapkamer van gemaakt kan worden.
Bij de dakramen in het midden van het woongedeelte is een elektrisch werkend zonnescherm met wind- en regendetectie aangebracht.
De gehele ruimte is voorzien van een doorlopend massief houten vloer met warme uitstraling.
De riante woonkamer biedt, via de openslaande deuren, toegang tot het inpandige, op het zuiden gelegen terras. Windvrij en vrij uitzicht over het water dankzij de glazen omheining. Het terras is met zorg en aandacht voor detail aangelegd: een elektrisch werkend zonnescherm met wind- en regendetectie. In de omheining bevindt zich een deurtje voor het instappen in een sloep.
Via een strak vormgegeven trap wordt de benedenverdieping bereikt, volledig voorzien van een doorlopende gietvloer.
Lichte tussenhal/overloop met gastentoilet.
Ruime master bedroom met ensuite luxe badkamer met ligbad, ruime inloopdouche, wastafel combi en een Géberit Aquaclean Mera douche-wc.
Tweede ruime slaapkamer met inloopdouche, wastafelmeubel en kastenwand.
De gehele benedenverdieping bevat ruime op maat gemaakte inbouwkasten.
LOCATIE:
Het Westerdok ligt tussen het IJ en de Westelijke Eilanden, op loopafstand van Amsterdam Centraal, om de hoek bij de Haarlemmerstraat met een gevarieerd aanbod van gespecialiseerde winkels en de Noordermarkt. Ook de culturele hotspot “Het Stenen Hoofd” is op loopafstand.
Een opvallend rustige centrumlocatie met een gemoedelijke, vriendelijke sfeer.
BIJZONDERHEDEN:
– Unieke ligging
– Uitstekende staat van onderhoud
– ‘Van Boven’ Exclusieve keukens en Luxe badkamers, Den Dungen
– Extra tv aansluiting in badkamer
– Op maat gemaakte jaloezieën voor alle ramen
– Alle vertrekken voorzien van vloerverwarming
– Airco 2 x met koel en verwarmingsfunctie
– Degelijk afgemeerd d.m.v. staaldraad en afmeerbeugels
– Trimvaten onder de watervilla
– Elektronisch beveiligingssysteem
– Mogelijkheid tot het plaatsen van een sloep
– Sedumdak (extra isolatie)
– Energielabel B
KENMERKEN:
Naam: MI GUDU
Casco: Beton
Opbouw: Red cedar
Oppervlakten en inhoud: ± 157 m2 woonoppervlakte inclusief terras
Bouwjaar: 2014 (casco) en binnenzijde in 2020 volledig gerenoveerd
Liggeld: € 1.450,- per jaar (2025)
Nutsvoorzieningen: Electra, gas, water, riool, telefoon en kabel-tv
Overname: In overleg
Disclaimer inzake aanbod
De informatie op deze pagina geeft een globale omschrijving van het aangeboden object. Aan de inhoud kunnen geen rechten worden ontleend. Vermelding van afmetingen en oppervlakten is slechts als aanduiding bedoeld en niet als gegarandeerde eigenschap. De NEN meetinstructie voor gebouwen is niet toegepast.
Alle zich in deze aanbieding bevindende informatie is door ons met grote zorgvuldigheid samengesteld, echter met betrekking tot deze informatie aanvaarden wij geen enkele aansprakelijkheid, noch kan aan vermelde informatie enig recht worden ontleend.
Een woonboot is een roerend goed waarbij de bedenktijd van 3 dagen niet van toepassing is en een mondelinge overeenkomst bindend is.
Per 1 januari 2022 is de wet opkoopbescherming van kracht hetgeen betekent dat gemeenten een zelfbewoningsplicht kunnen opleggen bij aankoop. Voor gedetailleerde informatie hierover verwijzen wij u naar de betreffende gemeente.
Neem contact op
- Email:
- info@woonboot.nl
- Kantoor:
- 020-4680940

























































