Prinsengracht 215-M – Amsterdam
Oppervlakte:40 m2 - Aantal slaapkamers: 2
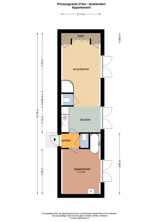
Omschrijving
€ 369.000,- v.o.n. – Super locatie in het hart van het centrum van Amsterdam! Stelt u zich eens voor……. aan de rand van de Jordaan, schuin tegenover het immer populaire Café P96 (met riant terras op het water!) en met de iconische Westertoren op de achtergrond…..Voor de echte centrum liefhebber is dit toch “the place to be”. Bruisender en gezelliger kunnen we het niet bedenken.
En op deze unieke plek mogen wij woonboot DOTJE te koop aanbieden! DOTJE is compact en efficiënt ingedeeld. Er zijn twee ruime (slaap)kamers met ieder eigen badgelegenheid, een centrale woonkeuken (met kookplaat, oven en koelkast) en separaat toilet. De prachtige eiken vloer geeft het geheel een stoere uitstraling. De grote raampartijen aan de waterzijde zorgen voor veel lichtinval. Uiteraard zou u ook kunnen overwegen om van één slaapkamer een fraaie living te maken. Een moderne open haard (op gas) is reeds aanwezig en aan uitzicht geen gebrek!
De ideale buitenkans dus voor singles, studenten die samen iets zoeken en/of jonge stellen die (nog) niet voor gezinsuitbreiding staan, ouders voor hun kind(eren), mensen die denken aan of op het punt staan te emigreren maar toch nog woonruimte in de stad willen aanhouden als
pied-á-terre .
In juli 2024 is zij op de werf geweest voor de periodieke keuring van het stalen casco. Dat betekent dat de “fundering” van deze waterwoning weer pico bello in orde is!
Bent u klaar voor deze droomplek en om DOTJE in uw hart te sluiten? Bel ons dan snel om een afspraak te maken.
Bijzonderheden:
Naam: DOTJE
Casco: Staal
Opbouw: Hout
Afmetingen: ± 14,70 x 3.40 meter
Liggeld: ± € 820,- per jaar
Nutsvoorzieningen: Water, elektra, riool, gas.
Disclaimer inzake aanbod
De informatie op deze pagina geeft een globale omschrijving van het aangeboden object. Aan de inhoud kunnen geen rechten worden ontleend. Vermelding van afmetingen en oppervlakten is slechts als aanduiding bedoeld en niet als gegarandeerde eigenschap. De NEN meetinstructie voor gebouwen is niet toegepast.
Alle zich in deze aanbieding bevindende informatie is door ons met grote zorgvuldigheid samengesteld, echter met betrekking tot deze informatie aanvaarden wij geen enkele aansprakelijkheid, noch kan aan vermelde informatie enig recht worden ontleend.
Een woonboot is een roerend goed waarbij de bedenktijd van 3 dagen niet van toepassing is en een mondelinge overeenkomst bindend is.
Per 1 januari 2022 is de wet opkoopbescherming van kracht hetgeen betekent dat gemeenten een zelfbewoningsplicht kunnen opleggen bij aankoop. Voor gedetailleerde informatie hierover verwijzen wij u naar de betreffende gemeente.
Neem contact op
- Email:
- info@woonboot.nl
- Kantoor:
- 020-4680940


































